Driver
Het project Driver is gelegen in de Steenbergstraat te Affligem (Teralfene). De bestaande gebouwen en achterliggende parking worden afgebroken en maken plaats voor 3 grondgebonden woningen (2 halfopen en 1 gesloten) in een moderne architectuur. Het centrum en de winkels bevinden zich op wandelafstand en de locatie heeft ook qua mobiliteit grote troeven gezien de nabijheid van het treinstation en een snelle ontsluiting naar de E40. De woningen, allen BEN en CO2-neutraal o.a. door toepassing van een lucht-water warmtepomp in combinatie met vloerverwarming, hebben een bewoonbare oppervlakte van 205 à 209 m² met focus op een grote leefruimte. Optioneel kan er voor 2 van de 3 woningen een carport voorzien worden. Hieronder vindt u de plannen en info van de woningen afzonderlijk. PROJECT ONDERTUSSEN VOOR 100% VERKOCHT - BEDANKT VOOR HET VERTROUWEN !
VERKOCHT
Woning - Lot 1
Specificaties
209m2
Huis
3
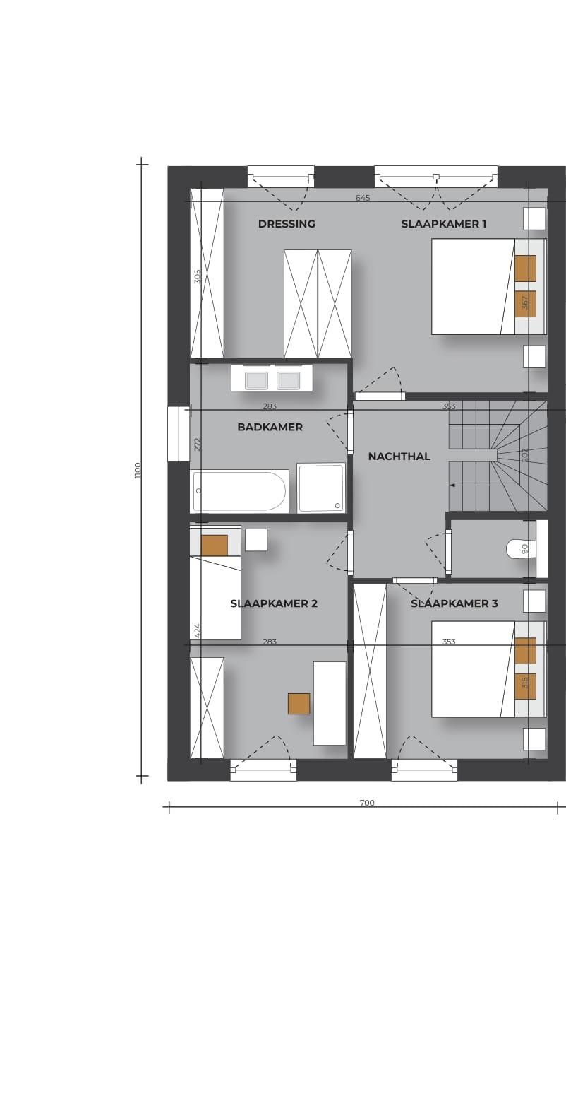
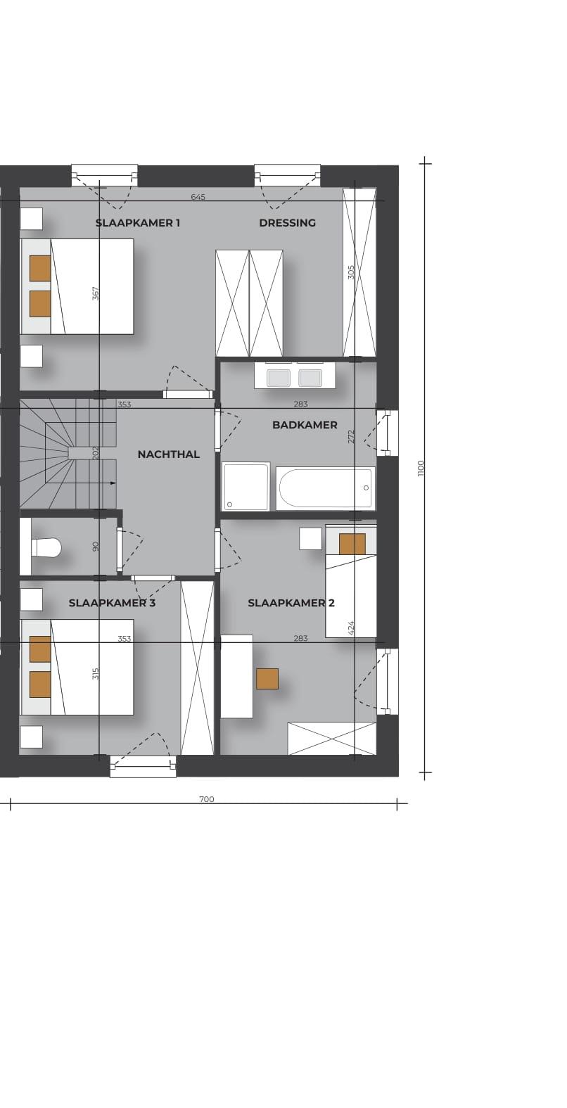
Dit is een woning in half-open bebouwing op een perceel van 4are40 die sleutel-op-deur wordt afgewerkt en waarbij u de afwerking kan kiezen volgens uw wensen samen met onze leveranciers. Als extra troef is er een ruime zolder met vaste trap die optioneel kan worden ingericht.
VERKOCHT
Woning - Lot 2
Specificaties
205m2
Huis
3
Dit is een woning in gesloten bebouwing op een perceel van 2are60 die sleutel-op-deur wordt afgewerkt en waarbij u de afwerking kan kiezen volgens uw wensen samen met onze leveranciers. Als extra troef is er een ruime zolder met vaste trap die optioneel kan worden ingericht.
VERKOCHT
Woning - Lot 3
Specificaties
209m2
Huis
3
Dit is een woning in halfopen bebouwing op een perceel van 4are57 die sleutel-op-deur wordt afgewerkt en waarbij u de afwerking kan kiezen volgens uw wensen samen met onze leveranciers. Als extra troef is er een ruime zolder met vaste trap die optioneel kan worden ingericht.
Prijzen zijn steeds excl. BTW en kosten.
Powered by gmapgen jp & http://www.googlemapsgenerator.com/nl/ http://www.googlemapsgenerator.com/nl/ http://www.googlemapsgenerator.com/fr/ http://www.googlemapsgenerator.com/fr/ http://www.googlemapsgenerator.com/es/ http://www.googlemapsgenerator.com/es/ http://www.googlemapsgenerator.com/ja/ http://www.googlemapsgenerator.com/ja/ http://www.googlemapsgenerator.com/zh/ http://www.googlemapsgenerator.com/zh/












