The Hawk
Het project The Hawk is gelegen in de Havikstraat te Berlaar met zicht op de achterliggende natuur, maar toch vlakbij het dorp en op wandelafstand van de basisschool De Balder. Wij creëren 6 halfopen grondgebonden woningen in een "landelijk strakke" architectuur. Dit in een nieuw aan te leggen woonwijk met aandacht voor groen, waterbeheer en een leuke publieke speel -en beleefzone op de grens met de nabije velden. De BEN-woningen hebben een bewoonbare oppervlakte tussen 209 à 216 m² met aandacht voor een ruime leefruimte met zowel zichten naar de tuin als naar de nieuwe openbare ruimte. Alle woningen hebben ook een inrichtbare zolder. Hieronder vindt u de plannen en info van de woningen afzonderlijk. Het lastenboek bezorgen wij u met plezier op aanvraag. PROJECT ONDERTUSSEN VOOR 100% VERKOCHT - BEDANKT VOOR HET VERTROUWEN !
VERKOCHT
Woning - Lot 1
Specificaties
209m2
Huis
3
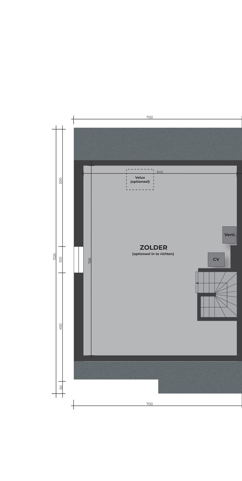
Dit is een halfopen bebouwing op een perceel van 5are64 die sleutel-op-deur wordt afgewerkt en waarbij u de afwerking kan kiezen volgens uw wensen samen met onze leveranciers. Als extra troef is er een ruime zolder met vaste trap die optioneel kan worden ingericht.
Er is tevens voorzien in de plaatsing van een carport en de omgevingsaanleg zoals bepaald in het lastenboek.
Er is tevens voorzien in de plaatsing van een carport en de omgevingsaanleg zoals bepaald in het lastenboek.
VERKOCHT
Woning - Lot 2
Specificaties
212m2
Huis
3
Dit is een halfopen bebouwing op een perceel van 3are58 die sleutel-op-deur wordt afgewerkt en waarbij u de afwerking kan kiezen volgens uw wensen samen met onze leveranciers. Als extra troef is er een ruime zolder met vaste trap die optioneel kan worden ingericht.
Er is tevens voorzien in de plaatsing van een carport en de omgevingsaanleg zoals bepaald in het lastenboek.
Er is tevens voorzien in de plaatsing van een carport en de omgevingsaanleg zoals bepaald in het lastenboek.
VERKOCHT
Woning - Lot 3
Specificaties
207m2
Huis
3
Dit is een halfopen bebouwing op een perceel van 5are27 die sleutel-op-deur wordt afgewerkt en waarbij u de afwerking kan kiezen volgens uw wensen samen met onze leveranciers. Als extra troef is er een ruime zolder met vaste trap die optioneel kan worden ingericht.
Er is tevens voorzien in de uitvoering van de omgevingsaanleg zoals bepaald in het lastenboek.
Er is tevens voorzien in de uitvoering van de omgevingsaanleg zoals bepaald in het lastenboek.
VERKOCHT
Woning - Lot 4
Specificaties
216m2
Huis
3
Dit is een halfopen bebouwing op een perceel van 4are89 die sleutel-op-deur wordt afgewerkt en waarbij u de afwerking kan kiezen volgens uw wensen samen met onze leveranciers. Als extra troef is er een ruime zolder met vaste trap die optioneel kan worden ingericht.
Er is tevens voorzien in de plaatsing van een carport en de omgevingsaanleg zoals bepaald in het lastenboek.
Er is tevens voorzien in de plaatsing van een carport en de omgevingsaanleg zoals bepaald in het lastenboek.
VERKOCHT
Woning - Lot 5
Specificaties
209m2
Huis
3
Dit is een halfopen bebouwing op een perceel van 4are96 die sleutel-op-deur wordt afgewerkt en waarbij u de afwerking kan kiezen volgens uw wensen samen met onze leveranciers. Als extra troef is er een ruime zolder met vaste trap die optioneel kan worden ingericht.
Er is tevens voorzien in de plaatsing van een carport en de omgevingsaanleg zoals bepaald in het lastenboek.
Er is tevens voorzien in de plaatsing van een carport en de omgevingsaanleg zoals bepaald in het lastenboek.
VERKOCHT
Woning - Lot 6
Specificaties
212m2
Huis
3
Dit is een halfopen bebouwing op een perceel van 5are03 die sleutel-op-deur wordt afgewerkt en waarbij u de afwerking kan kiezen volgens uw wensen samen met onze leveranciers. Als extra troef is er een ruime zolder met vaste trap die optioneel kan worden ingericht.
Er is tevens voorzien in de plaatsing van een carport en de omgevingsaanleg zoals bepaald in het lastenboek.
Er is tevens voorzien in de plaatsing van een carport en de omgevingsaanleg zoals bepaald in het lastenboek.
Prijzen zijn steeds excl. BTW en kosten.
Powered by gmapgen jp & http://www.googlemapsgenerator.com/nl/ http://www.googlemapsgenerator.com/nl/ http://www.googlemapsgenerator.com/fr/ http://www.googlemapsgenerator.com/fr/ http://www.googlemapsgenerator.com/es/ http://www.googlemapsgenerator.com/es/ http://www.googlemapsgenerator.com/ja/ http://www.googlemapsgenerator.com/ja/ http://www.googlemapsgenerator.com/zh/ http://www.googlemapsgenerator.com/zh/

























