Beverstraat
Woonproject van 4 woningen in de Beverstraat te Strombeek, waarvan nog slechts één woning beschikbaar is (Lot 1). Bekijk de nieuwe voorwaarden hieronder!
De woningen worden gerealiseerd in een warme pastorijstijl en beschikken over minstens drie slaapkamers en een comfortabele leefruimte met open keuken. Naast de kwalitatieve afwerking werd resoluut gekozen voor energiezuinige BEN-woningen, uitgerust met een warmtepomp en vloerverwarming. Parkeren kan in de voortuin of in de garage. Daarnaast is er ruimte voorzien voor het stallen van fietsen en beschikt elke woning over een private tuin.
Scholen, sportvoorzieningen, supermarkt en het centrum van Strombeek bevinden zich op wandel- of fietsafstand. Dankzij de ligging in de rand rond Brussel, vlak bij de belangrijkste invalswegen, geniet je van een vlotte bereikbaarheid. Metro en Heizel liggen in de nabije omgeving.
Alle woningen zijn reeds wind- en waterdicht en kunnen opgeleverd worden in 2026.
De woningen worden gerealiseerd in een warme pastorijstijl en beschikken over minstens drie slaapkamers en een comfortabele leefruimte met open keuken. Naast de kwalitatieve afwerking werd resoluut gekozen voor energiezuinige BEN-woningen, uitgerust met een warmtepomp en vloerverwarming. Parkeren kan in de voortuin of in de garage. Daarnaast is er ruimte voorzien voor het stallen van fietsen en beschikt elke woning over een private tuin.
Scholen, sportvoorzieningen, supermarkt en het centrum van Strombeek bevinden zich op wandel- of fietsafstand. Dankzij de ligging in de rand rond Brussel, vlak bij de belangrijkste invalswegen, geniet je van een vlotte bereikbaarheid. Metro en Heizel liggen in de nabije omgeving.
Alle woningen zijn reeds wind- en waterdicht en kunnen opgeleverd worden in 2026.
Interesse om te kopen?

Wij helpen u voor dit project graag rechtstreeks verder.
Oppemstraat 17 - 1861 Meise (Wolvertem)
015/21 25 30
info@quup.be
www.quup.be
Oppemstraat 17 - 1861 Meise (Wolvertem)
015/21 25 30
info@quup.be
www.quup.be
439.000 €
Woning - Lot 1
Specificaties
157m2
Huis
3
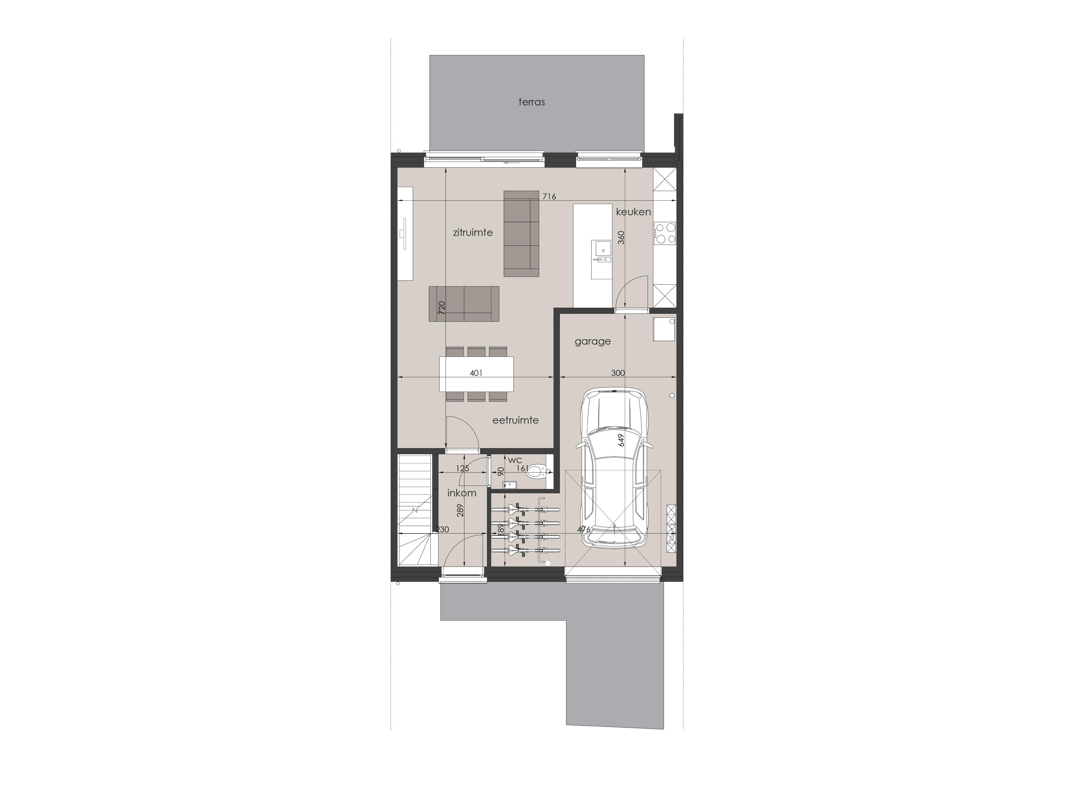
Deze halfopen bebouwing is gelegen op een perceel van 2 are 21 en beschikt over drie slaapkamers en een comfortabele leefruimte met open keuken. De woning wordt volledig sleutel-op-de-deur afgewerkt volgens een kwalitatieve standaard, inclusief aanleg van de buitenruimte. Bovenop deze standaardafwerking zijn extra afwerkingen inbegrepen in de prijs: alle slaapkamers worden voorzien van laminaatvloeren en de keuken wordt uitgevoerd met een bijkomende upgrade in afwerkingsgraad. Bij oplevering geniet u van een instapklare, all-in woning met een hoge afwerkingsgraad, zonder onverwachte meerkosten. Wie snel beslist, kan de afwerking nog naar eigen smaak personaliseren.
VERKOCHT
Woning - Lot 2
Specificaties
223m2
Huis
3
Dit is een woning in gesloten bebouwing op een perceel van 1are58 die sleutel-op-deur wordt afgewerkt en waarbij u de afwerking kan kiezen volgens uw wensen samen met onze leveranciers. Als extra troef is er een zolder met vaste trap die polyvalent kan worden gebruikt en inpandige garage.
VERKOCHT
Woning - Lot 3
Specificaties
150m2
Huis
2
Dit is een woning in gesloten bebouwing op een perceel van 1are50 die sleutel-op-deur wordt afgewerkt en waarbij u de afwerking kan kiezen volgens uw wensen samen met onze leveranciers.
VERKOCHT
Woning - Lot 4
Specificaties
148m2
Huis
2
Dit is een woning in half-open bebouwing op een perceel van 1are97 die sleutel-op-deur wordt afgewerkt en waarbij u de afwerking kan kiezen volgens uw wensen samen met onze leveranciers.
Prijzen zijn steeds excl. BTW en kosten.
Powered by gmapgen jp & http://www.googlemapsgenerator.com/nl/ http://www.googlemapsgenerator.com/nl/ http://www.googlemapsgenerator.com/fr/ http://www.googlemapsgenerator.com/fr/ http://www.googlemapsgenerator.com/es/ http://www.googlemapsgenerator.com/es/ http://www.googlemapsgenerator.com/ja/ http://www.googlemapsgenerator.com/ja/ http://www.googlemapsgenerator.com/zh/ http://www.googlemapsgenerator.com/zh/



